Enchanting Sanctuary

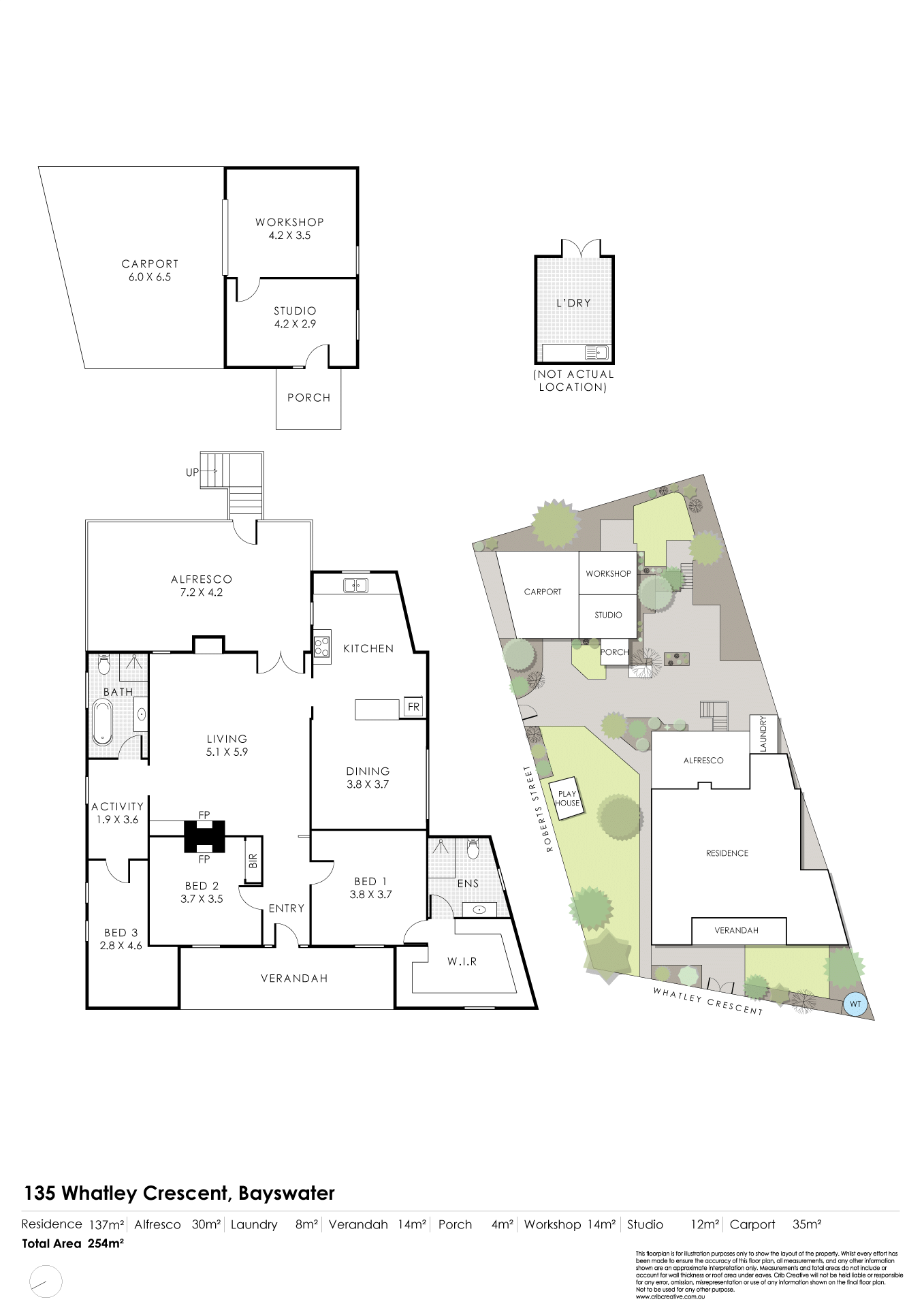
Nestled on a sprawling 721sqm corner block in the heart of Bayswater, this enchanting 1930's residence captures the essence of timeless charm while offering the comforts of modern family living. From the moment you arrive, the home's striking façade and elevated position evoke a sense of warmth, nostalgia, and potential. With three bedrooms, a studio (4th bedroom) and two bathrooms, this captivating home is ideal for families, entertainers, or savvy developers seeking opportunity in a highly sought-after location.

Lovingly restored, the home honours its heritage with rich original jarrah floorboards underfoot, soaring high ceilings, intricate cornices, and an inviting Jet master fireplace, all seamlessly blended with thoughtful renovations. Whether you're curling up by the fire with a good book or hosting vibrant gatherings on the expansive outdoor deck, this home speaks to both heart and lifestyle.

The kitchen has been thoughtfully designed to blend rustic character with modern convenience. Wooden cabinetry pairs beautifully with sleek stone benchtops and stainless-steel appliances. Adjacent to the kitchen is a formal dining area which flows to the open living area, featuring high vaulted ceilings and cosy fireplace.

The master suite is privately positioned and beautifully finished with a large walk-in wardrobe, split system air conditioning, ceiling fan, and a spacious ensuite that combines classic styling with contemporary touches. The second bedroom, located at the front of the home, features decorative fireplace and leafy views, while the third bedroom is cleverly connected to a study, ideal for a work-from-home setup. The second bathroom is an absolute standout, styled with rustic charm featuring a timber vanity and deep iron clawfoot bath.

Outside, the home continues to impress with a spectacular elevated timber deck that overlooks the lush rear gardens. Framed by mature trees and thoughtfully landscaped greenery, this is a private and peaceful space designed for year-round entertaining, complete with electric outdoor heating and space to relax, dine, and celebrate. A second alfresco area on the lower level offers even more versatility. The backyard itself is a wonderland for families, featuring a spacious lawn, established flora and a cubby house that promises hours of fun.

The property also includes a studio/4th bedroom with aircon, a powered workshop, double carport and a large garden shed with enough space for additional parking or storage. Underneath the home, you'll find extensive storage capacity. Secure gates to both the front and side of the property ensure peace of mind, making this a safe and private haven for families.

Located within walking distance of Bayswater train station and just 9km from the Perth CBD, this home places you at the centre of convenience. Enjoy weekends at Riverside Gardens, explore the banks of the Swan River, or head into Maylands to experience its vibrant café and boutique strip. With excellent schools, local shops, and transport links all close by, the lifestyle on offer here is truly exceptional.

In addition to its charm and comfort, the property also presents outstanding development potential. With R25 zoning and a corner block configuration, options abound to retain the existing home and build at the rear, or redevelop the entire site (STCA).

This exceptional residence is a rare opportunity to enjoy timeless character, modern comfort, and development potential, in a vibrant and convenient location.

Features;
• Four bedrooms
• Two bathrooms
• Study
• Studio/4th bedroom attached to workshop
• Spacious kitchen
• Dining room
• Lounge room with Jet master fireplace
• Jarrah floorboards
• High ceilings
• Feature skirting boards
• Separate laundry
• Covered outdoor alfresco deck area
• Second alfresco area
• Mature trees and landscaped gardens
• Spacious lawn area
• Double carport
• Powered workshop
• Garden shed
• Storage underneath the home
• Secure gates to both front and side of the home
• Development potential (STCA)

Approximate Distance to;
• 400m- Mills Avenue Park
• 400m- Bayswater Primary School
• 500m- IGA Bayswater
• 650m- Halliday Park
• 700m- Bayswater Hotel
• 1.8km- Chisholm Catholic College
• 2.6km- John Forrest Secondary College
• 4.9km- Mount Lawley Senior High School

Water Rates- $425.00 p/a approx.
Council Rates- $1,888.42 p/a approx.

Features

Fenced Outdoor entertainment area Secure Parking Study
4 2 2 721 m2
Address 135 Whatley Crescent, Bayswater
Price SOLD for $1,385,000
Property Type Residential
Property ID 32064
Category House
Land Area 721 m2
Floor Area 156 m2

Agent Details

Hamish Laidlaw photo

Hamish Laidlaw

0417 971 528
View Profile