Investment Opportunity in Hillarys

Auction Location: Online Auction

Take advantage of this opportunity in Hillarys, just moments from the coast, quality schools, shopping centres, restaurants, cafes and leafy parks. Welcome to 15a McWhae Road Hillarys.

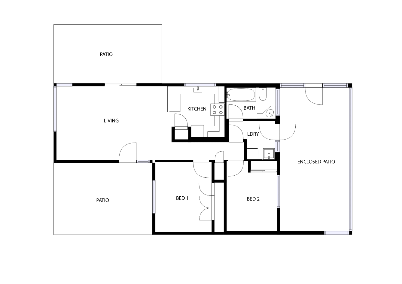
Currently tenanted with tenants open to extend their lease, investors can enjoy immediate rental income alongside flexibility with this magnificent addition to their portfolio. The property features two bedrooms and one bathroom plus single car carport.

Spacious inside and out with generously sized bedrooms with built in robes, the property enjoys huge outdoor spaces at both the front and rear, making them highly desirable for families alike. It also boasts an enclosed games room, huge rear, exterior space, tiled flooring in the living areas with plush carpeted bedrooms.

A mere 500m from the esteemed Hillarys Primary School, an easy cycle to Duncraig Senior High or St Marks Anglican Community School, with Whitfords Shopping Centre and Hillarys Boat Harbour just minutes from your doorstep, this location couldn't be better positioned for families seeking a convenient and community-based lifestyle in one of Perth's most sought-after suburbs.

With so much scope for development opportunities, this is truly a unique find in a high-growth, desirable pocket of coastal real estate. Don't miss out on this exceptional opportunity to secure your investment future in Hillarys. For expressions of interest, please contact adam@xceedre.com.au or call 0406 616 608.

Features include:

2 bedrooms and 1 bathroom plus open plan kitchen/living/dining areas
Large external areas and air-conditioning
Single car carport
Enclosed games room, tiled & carpeted flooring, gas bayonet – leased until Sept 23
Option to re-lease with current tenants

Location (approx. distances):

Hillarys Primary School 500m
Duncraig High School 1.7km
Hillarys Shopping Centre 1.8km
Mawson Park 2.2km
St Marks Anglican School 2.7km
Whitfords Nodes Park 2.7km
Hillarys Boat Harbour 2.9km
Whitfords Shopping Centre 3.5km
Hillarys Dog Beach 3.9km

For sale by Openn Negotiation (flexible conditions online auction). The Openn Negotiation is under way and the property can sell at any time. Contact the sales agent immediately to become qualified and avoid disappointment. Open to all buyers, including finance, subject to seller approval.
2 1 1
Address 15a McWhae Road, Hillarys
Price SOLD for $546,250
Property Type Residential
Property ID 30006
Category House

Agent Details

Adam Whitford photo

Adam Whitford

0406 616 608
View Profile