Developers' Dream in Convenient Location

Auction Location: Online Auction

Seize this brilliant opportunity to rent to tenants while devising your subdivision plans!

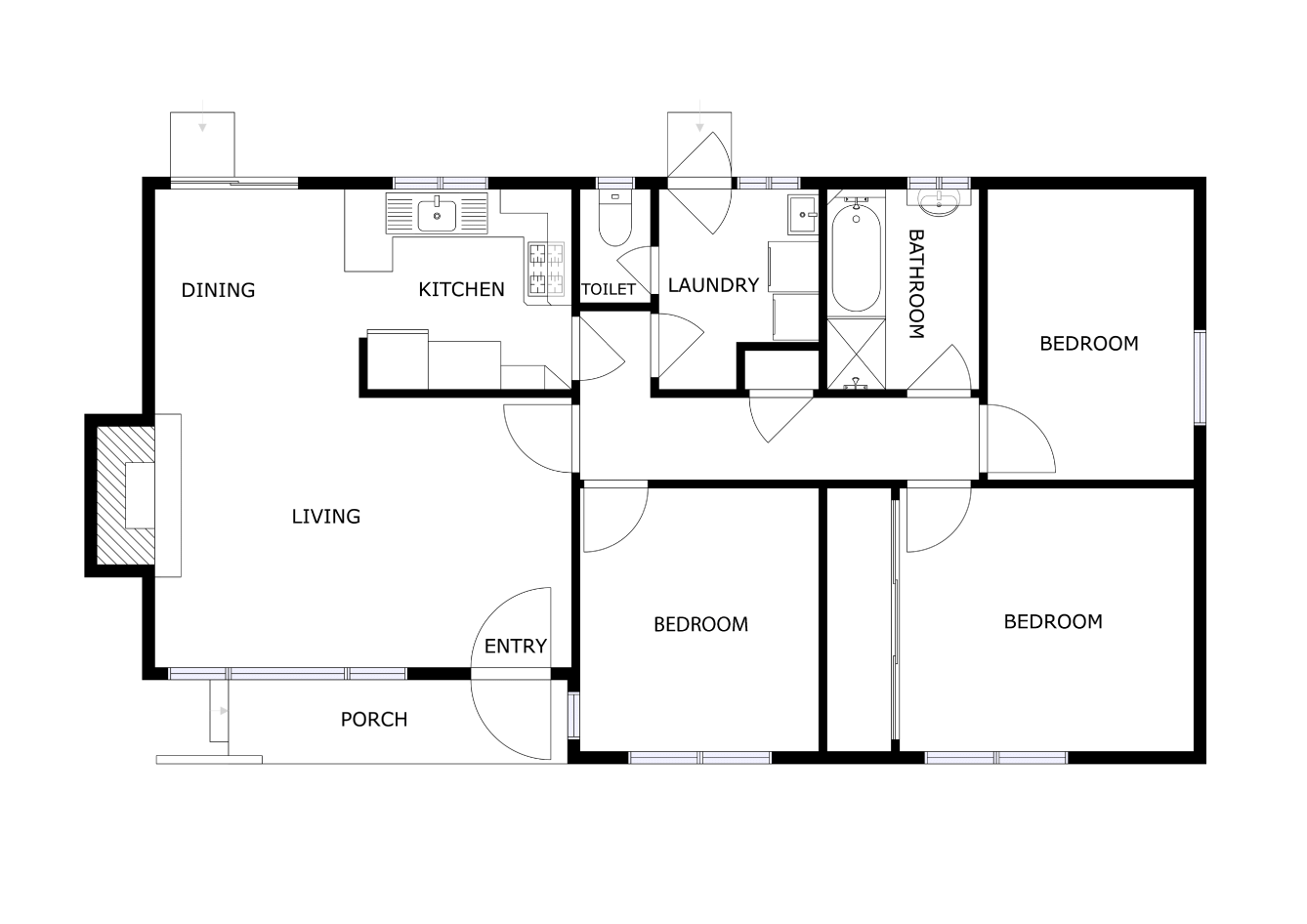
Located on an impressive 802sqm block zoned R40/60, find three bedrooms, one bathroom, one carport, split system air conditioning and a good-sized living area. Offering huge development potential, this corner site property is located just a short walk to Morley Primary School, Galleria Shopping Centre, and the green space of Ra Cook Reserve.

On the periphery of booming city-fringe areas such as Mount Lawley and Inglewood, find yourself in the Perth CBD in less than 20 minutes by car, and at Bayswater Train Station in seven minutes. This is an area that is sure to become significantly more desirable for families, due to its proximity to major amenities and transport, good schools, the city, and popular recreational facilities.

The house itself is in its original condition, featuring an updated kitchen with an electric cooker and top and bottom storage, a bathroom with a shower and bath, and a separate WC. There's also a sizeable laundry with direct outside access. Security window and door screens are installed throughout, while outside, cool off under a covered paved terrace surrounded by plenty of greenery. The home is connected to the NBN offering high speed internet access.

A garden shed at the rear and extra parking on the front entry driveway are additional features that make this investment liveable in the short term. The bus stops of Walter Road are just seven minutes on foot, with the multiple eatery options at Westfield Galleria just a 10-minute walk. Carmel School is equally as close by car, while John Forrest Secondary College is a four-minute commute.

There's enormous potential here for savvy investors and developers. Register your interest by contacting Adam Whitford on 0406 616 608 and Joe Da Mata on 0406 237 964 of Xceed Real Estate today.

Location (approx. distances):

500m Walter Road bus stops
700m Westfield Galleria Shopping Centre
700m Morley Bus Station
900m Ra Cook Reserve
1.0km Morley Sport and Recreation Centre
1.1km John Forrest Secondary College
1.2km Morley Primary School
3.1km Bayswater Train Station
7.7km Perth CBD
3 1 1 802 m2
Address 294 Drake Street, Morley
Price SOLD for $802,500
Property Type Residential
Property ID 29634
Category House
Land Area 802 m2

Agent Details

Adam Whitford photo

Adam Whitford

0406 616 608
View Profile
Joe Da Mata photo

Joe Da Mata

0406 237 964
View Profile