BRING YOUR GRANNY!

Giant house OR big house with a granny flat, the configuration of this property is PERFECT for a extended family living together!

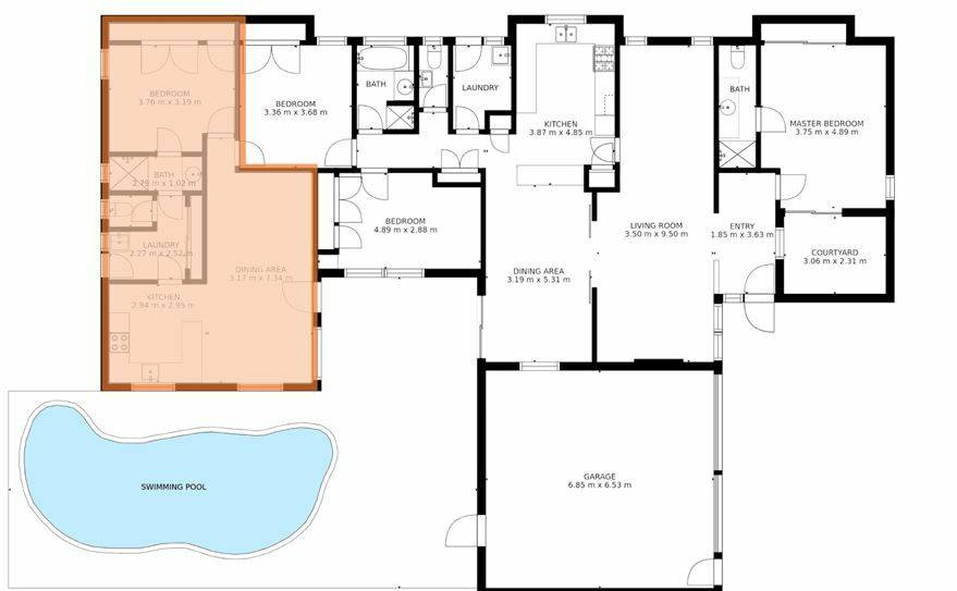
In immaculate condition this home has FOUR bedrooms, THREE bathrooms, THREE living areas, TWO kitchens, TWO laundries, TWO lock-up parking spots, LOADS of carparking for the boat / caravan PLUS a stunning below ground swimming pool with waterfall feature.

Being SO close to white sandy beaches, the freeway and local shops, schools and parks – OPPORTUNITIES LIKE THIS DON’T COME AROUND TOO OFTEN!

 

MAIN HOUSE

·       King-size master bedroom with an ensuite bathroom, private courtyard and a triple wardrobe

·       Formal lounge / dining

·       Open plan kitchen with heaps of bench space, gas cooktop and dishwasher

·       Two queen-size minor bedrooms with built-in robes

·       Family bathroom with a separate bath and shower (perfect for little ones)

·       Separate WC

·       Separate laundry with external access

 

GRANNY FLAT

·       Open plan kitchen, living, dining

·       Large bedroom with built-in robes

·       Semi-ensuite bathroom (semi-renovated)

·       Laundry with external access

 

OUTSIDE / OTHER

·       Stunning below ground pool with waterfall feature

·       Patio for outdoor entertaining

·       Low maintenance gardens

·       Double lock-up parking

·       Heaps of additional parking for boats / caravans

 

OTHER

·       Split system reverse cycle air conditioning

·       Security screens / windows

·       No carpets

·       Freshly painted

 

HOW TO BOOK AN INSPECTION FOR THIS PROPERTY

Please note that you must inspect the property prior to applying. We accept 2apply applications once you have viewed the property.



HOW TO VIEW THE PROPERTY

Simply scroll down past the description and click the ‘Book an Inspection Time’ button and select from one of the available times.

If there are no inspection times available then you will be notified as soon as one is scheduled.

You must register for the inspection so that you are informed of any updates, changes or cancellations to the scheduled viewing time.

If no one registers for the inspection time - then that inspection time may not proceed.

Life is better with Xceed®!

4 3 2
Available Leased
Address 38 Springvale Drive, Warwick
Price FROM 875 - WITH GRANNY FLAT
Property Type Rental
Property ID 28379
Category House

Agent Details

Gary Birkinshaw photo

Gary Birkinshaw

08 9207 2088
View Profile