A Parkside Pleasure!

The Openn Negotiation is underway (online auction with flexible terms for qualified buyers) and the property can sell as early as tomorrow. Contact Adam immediately to become qualified and avoid disappointment.

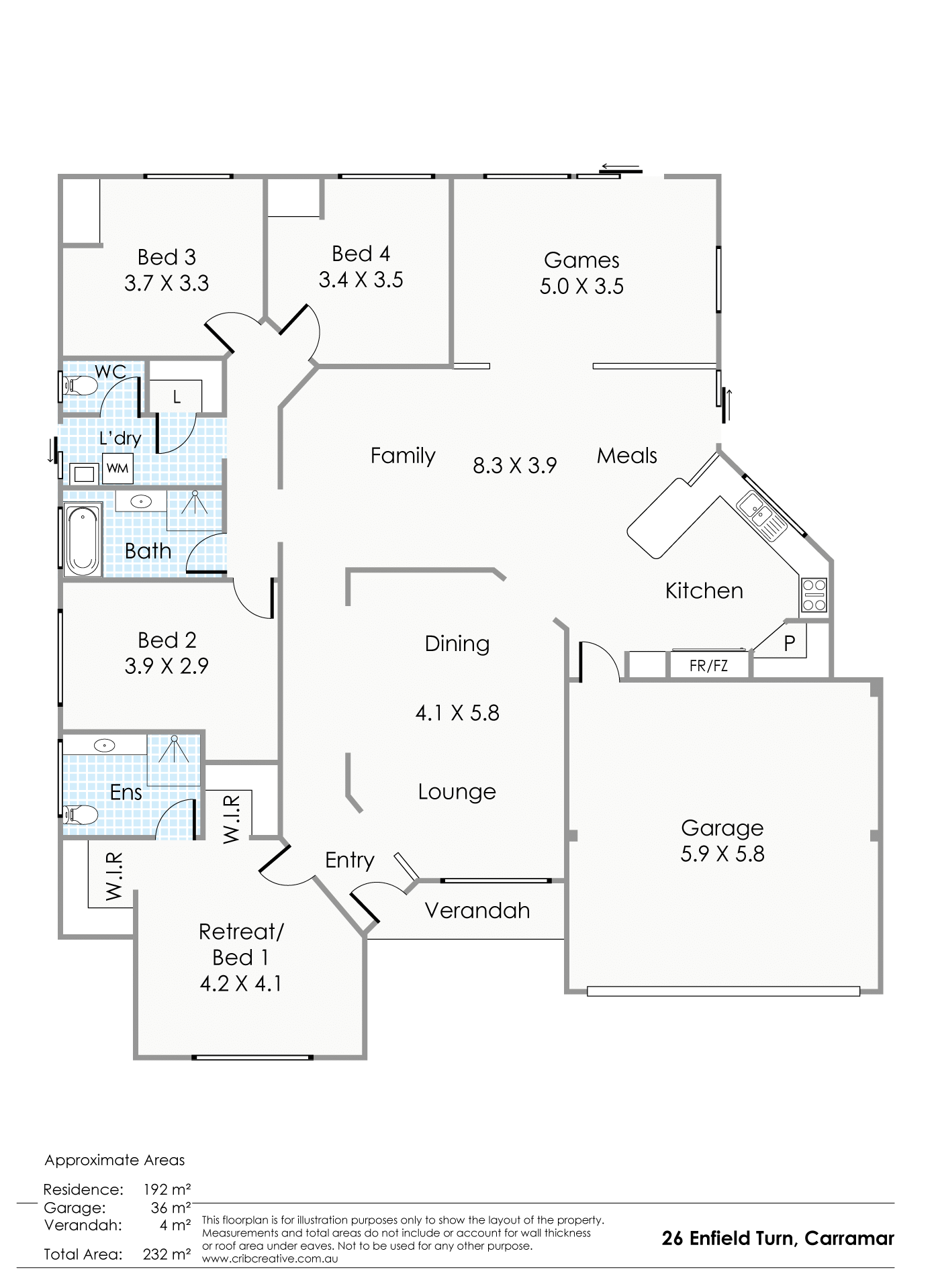
With its elevated front yard splendidly overlooking the lovely Peter Turner Memorial Park on the corner, this fantastic 4 bedroom 2 bathroom family home is in the perfect position and is ready to live in right away, offering a delightful sense of contemporary comfort for all involved.

The carpeted front lounge room off the entry is huge and precedes a central open-plan family, dining and kitchen area with low-maintenance timber-look flooring – itself also massive in its proportions. The latter leads through to a large games room that essentially triples the amount of personal living options on offer before spilling outdoors to a spacious pitched rear patio for private entertaining.

A side patio off the main living zone wraps around to the backyard and extends the covered area, whilst there is plenty of room for a future swimming pool in place of lush L-shaped backyard lawns that currently make for an ideal cricket pitch, heading into summer. Back inside, all bedrooms are light, bright and neatly carpeted, with a commodious front master suite being the pick of them all – comprising of separate “his and hers” walk-in wardrobes and an intimate ensuite bathroom with a shower, toilet and vanity for good measure.

Nestled right between shopping at both Banksia Grove Village and Carramar Village and also close to The Duke Bar and Bistro, the Carramar Community Centre, Carramar Primary School, Joseph Banks Secondary College, the Carramar Golf Club, other excellent shopping and educational facilities, the newly-extended Mitchell Freeway, public transport and our pristine northern-suburbs’ coastline, this outstanding residence has “living convenience” written all over it. What a buy!


Other features include, but are not limited to:

Gas-bayonet heating to the central family/dining/kitchen area
New Electrolux oven in the kitchen, alongside a Simpson gas cooktop, double sinks, a storage pantry, a dishwasher recess, a huge fridge/freezer recess, a microwave nook and internal shopper’s entry via a remote-controlled double lock-up garage
2nd/3rd/4th bedrooms with built-in robe recesses
Light-filled main family bathroom with a shower and separate bathtub
Practical laundry with plenty of natural light, a linen press, separate toilet and outdoor access
Painted throughout
Ducted-evaporative air-conditioning
Electric security window shutters to the front of the house
Foxtel connectivity
Security doors to the front entrance and garage shopper’s access door
Outdoor power points
Colorbond fencing
Reticulation to the front of the property
Limestone pavers to the rear exterior of the home
Solid brick-and-tile construction
613sqm (approx.) block with a side-access gate

4 2 2 613 m2
Address 26 Enfield Turn, Carramar
Price SOLD
Property Type Residential
Property ID 24587
Category House
Land Area 613 m2

Agent Details

Adam Whitford photo

Adam Whitford

0406 616 608
View Profile