Sold

Residential four lot development site from $795,000 currently being approved medical premises,

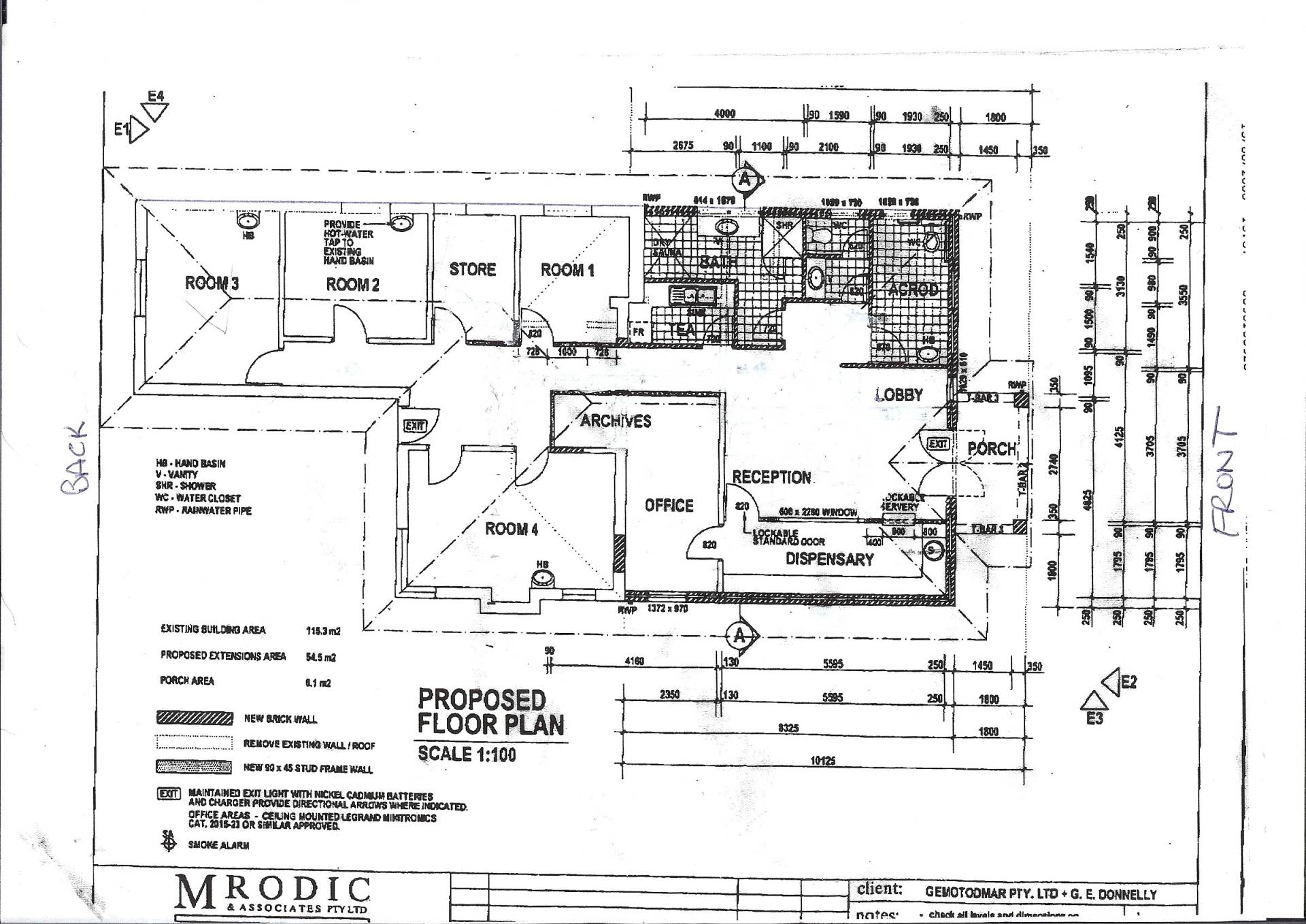
Residential r40 Development site. Albany Highway frontage . Well exposed corner Medical  Consulting rooms of approx 170sqm.   Existing use Approved  for 4 consultants rooms  with 16 open sealed car bays on site on 892 sqm lot. Well exposed to Albany Highway ,  corner lot though has good comfortable and safe access, from Wyndham St entry  into the main  entrance and car-park. Well maintained attractive building that  became vacant from August 2019. Council Approval as four Consulting Rooms from 2001 with further approval for additions in 2007. Provides 16  car bays for  the 4 practitioners approved being 15 standard bays and 1 Acrod bay.   Land  is zoned Residential R 40 Wyndham St..Outgoings

Council rates       19/20     $6293.21

Water Rates         18/19    $2500.00

Land  Tax                          $1134.90

Insurance                         $3253.00                   

Total                                $13,181.11

Contact agent Stuart Paterson for inspection.

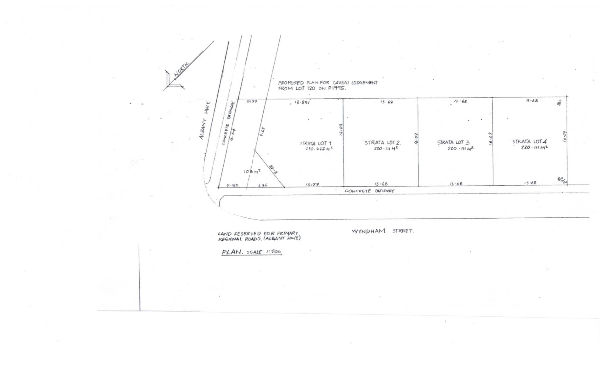
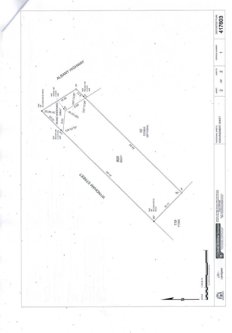
 Available now, with new certificate of title recently issued as lot 800 on Plan417603 of 892 square meters. 

This is a great development site with major frontage to Whyndham St ,so you can slice the lots off like slices of bread. Deep sewage connection point in south east corner. 

 

Existing improvements are air- conditioned and feature acrod toilet plus   a  standard toilet and tea room .Has  high Ceilings and comprises attractive reception area ,dispensory store , archives and admin office and four consultants rooms.Free standing well exposed premises in excellent condition.

 

Town of Victoria Park confirm approved  Use as Consulting Rooms means premises used for the investigation and/or treatment of physical or mental injuries or ailments in the practice of a profession by a person who is a legally qualified medical practitioner,dentist,physiotherapist,podiatrist or similar,but does not include a masseur and does not include a  premises practicing therapeutic massage or similar.

What a great investment,(A)being good medical premises approved for four practitioners and (b)  with a great underpinning land value for a    bale out option when you choose  by  subdividing the lot into 4 survey strata lots and  with up to $50,000 government benefits currently being available to first home buyers, land in the range of $200,00 to $250,000 per strata lot is now selling like hot cakes.We all know that land is king, which is where the appreciation in value mainly occurs.Enjoy working in your own premises and reap the rewards of subdivision at prevailing land values when you retire. Win Win.

16 892 m2
Address 1053 Albany Hwy, St James
Price SOLD
Property Type Residential
Property ID 17081
Category Vacant Land
Land Area 892 m2
Office Area 170m2

Agent Details