Sold

Medical premises or subdivisible site For Sale $795,000

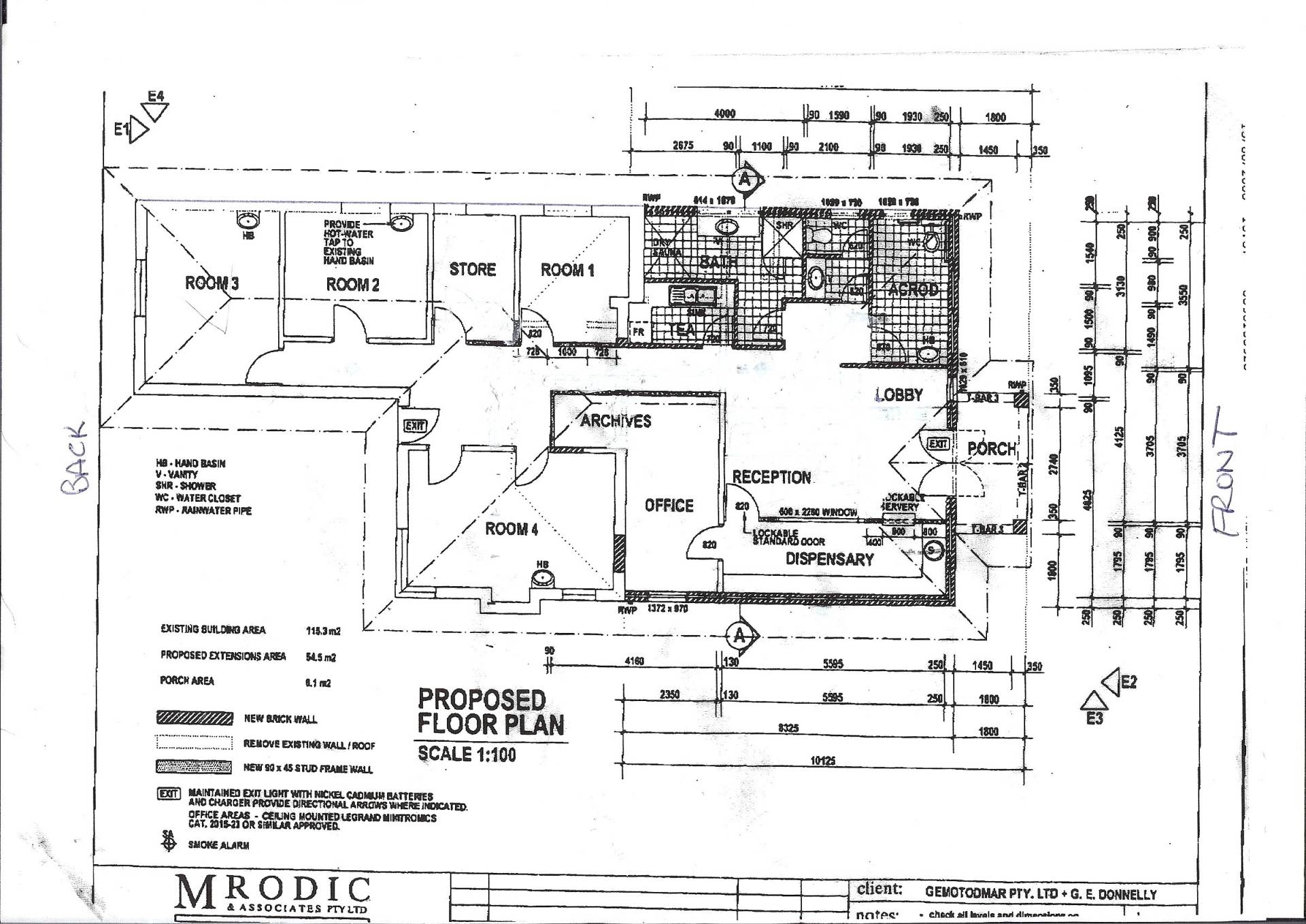
Medical Premises with  Albany Highway frontage . Well exposed corner Medical  Consulting rooms of approx 170   approved  for 4 consultants rooms  with 16 open sealed car bays on site on 892 sqm lot. Well exposed to Albany Highway ,  corner lot though has good comfortable and safe access, from Wyndham St entry  into the main  entrance and car-park. Well maintained attractive building that  became vacant from August 2019. Council Approval as four Consulting Rooms from 2001 with further approval for additions in 2007. Provides 16  car bays for  the 4 practitioners approved being 15 standard bays and 1 Acrod bay.   Land  is zoned Residential R 40 Wyndham St..Outgoings

Council rates       19/20     $6293.21

Water Rates         18/19    $2500.00

Land  Tax                          $1134.90

Insurance                         $3253.00                   

Total                                $13,181.11

Contact agent Stuart Paterson for inspection.

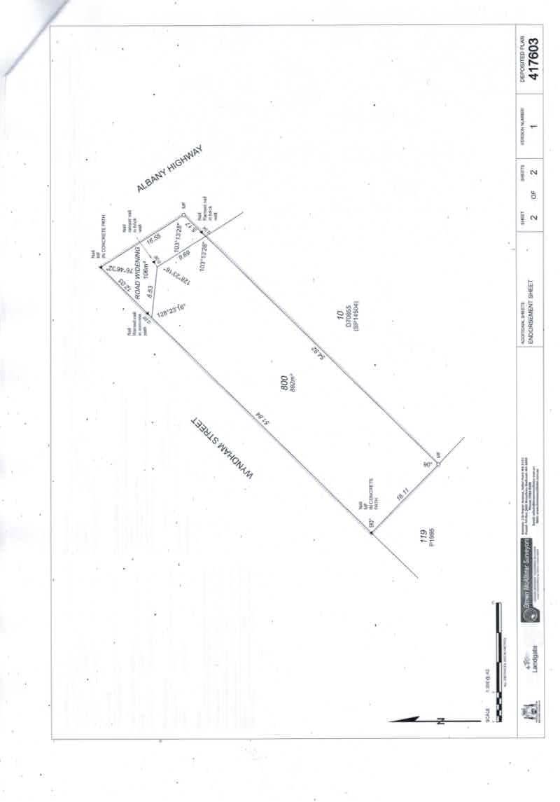
 Available now, with new certificate of title  for lot 800 on Deposited Plan417603 having just issued. 

Airconditioned and feature acrod toilet plus   a  standard toilet and tea room .Has  high Ceilings and comprises attractive reception area ,dispensory store , archives and admin office and four consultants rooms.Free standing well exposed premises in excellent condition.

 

Town of Victoria Park confirm approved  Use as Consulting Rooms means premises used for the investigation and/or treatment of physical or mental injuries or ailments in the practice of a profession by a person who is a legally qualified medical practitioner,dentist,physiotherapist,podiatrist or similar,but does not include a masseur and does not include a  premises practicing therapeutic massage or similar.

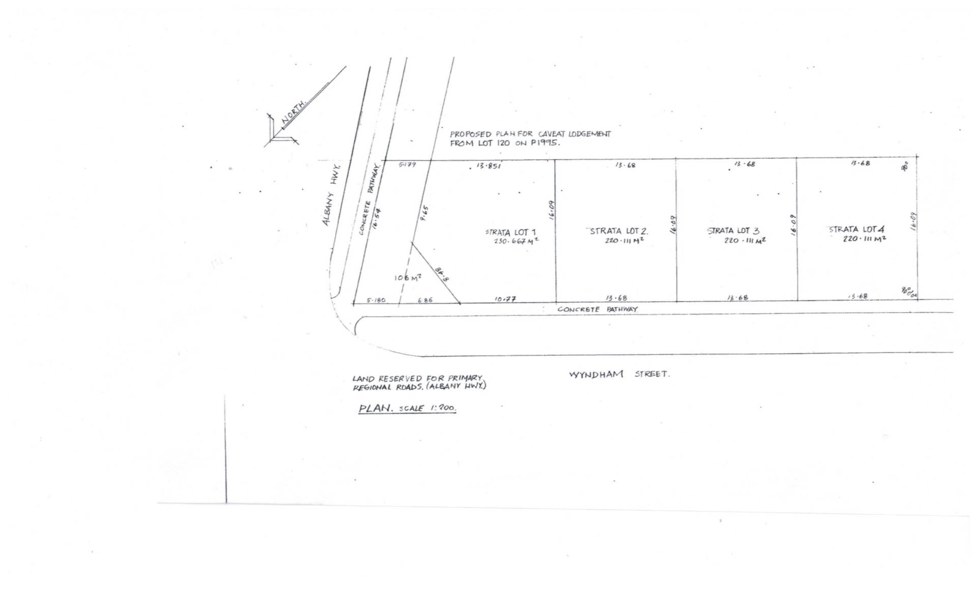
What a great investment,(A)being good medical premises approved for four practitioners and (b)  with a great underpinning land value the   bale out option when you choose  of subdividing the lot into 4 survey strata lots and  with up to $50,000 government benefits currently being available to first home buyers, land in the range of $200,00 to $250,000 per strata lot is now selling like hot cakes.We all know that land is king which is where the appreciation in value mainly occurs.Enjoy working in your own premises and reap the rewards of subdivision at prevailing land values when you retire. Win Win.

16 892 m2
Address 1053 Albany Hwy, St James
Price SOLD
Property Type Commercial
Property ID 15943
Category Medical/Consulting, Land/Development
Land Area 892 m2
Office Area 170m2

Agent Details